2-СТАЕН АПАРТАМЕНТ 69 М² ДО МЕТРОСТАНЦИЯ КРАСНО СЕЛО
- €193,640
Адрес
-
Град: София
-
Квартал: Красно Село
Описание
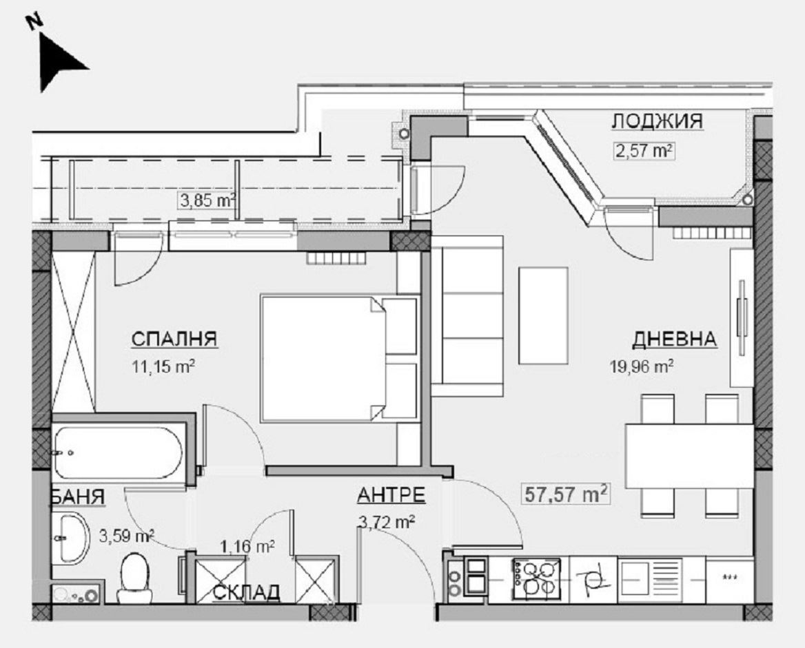
2-СТАЕН апартамент сас ЗП 58 м² до метростанция Красно село.
Състои се от дневна с трапезария и кухненски кът 20 м², тераса към дневната, спалня 12 м², баня с тоалетна, мокро помещение в апартамента и входно антре. Изложението е изток. Отоплението е на ТЕЦ.
Предава се на шпакловка и замазка с блиндирана входна врата, шесткамерна дограма от висок клас, ел инсталация на контакти и ВиК на тапи.
Сградата е луксозна, съчетаваща уют, комфорт, стил и спокойствие, с максимално функционално разпределение на апаптаментите, благоприятни изложения и минимален процент общи части, безшумни асансьори Орона, представителни магазини на партерения етаж и озеленено околоблоково пространство.
Намира се в един от най-комуникативните и озеленени южни квартали на столицата, близо до пазар Красно село и метростанция Красно село. В района има няколко училища, детски градини, поликлиника, супермаркети, градинки и много спирки на градски транспорт.
Има възможност за закупуване на подземно паркомясто.
АКТ16 началото на 2026 година
Цената е с ДДС
За контакт: ИВАНОВА: 0878 71 91 21
traditionsandfuture@gmail.com
Традиции и Бъдеще
Детайли
-
Цена €193,640
-
Квадратура 69 m²
-
Спалня 1
-
Стая 1
-
Година на завършване 2026
-
Тип имот 2-стаен
-
Вид оферта Продава
-
Обзавеждане Необзаведен
-
Вид строителство Тухла
-
Етаж 2
-
Етажи 7
-
Цена кв.м. 2806
-
Отопление ТЕЦ
-
Ново строителство Да
