3-СТАЕН АПАРТАМЕНТ 120 М² СОБСТВЕН ДВОР 160 М² В КВ. ПАВЛОВО
- €407,885
Адрес
-
Град: София
-
Квартал: Павлово
Описание
СГРАДАТА Е С АКТ 14
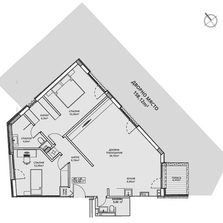
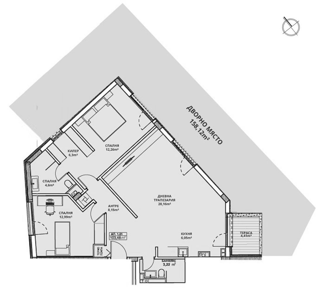
3-стаен апартамент със ЗП 104 м² и собствен двор 160 м² в кв. Павлово.
Състои се от дневна с трапезария и кухненски кът 34.21 м², спалня 12.26 м² с гардеробно помещение и баня, втора спалня 12.99 м², втора баня, мокро помещение, входно антре и двор към апартамента 160 м².
Изложението е югоизток/югозапад/северозапад. Отоплението е на ТОК.
Апартаментът ще бъде завършен до ключ. Ще има входна и интериорни врати, подови настилки с ламинат и италиански гранитогрес няколко дървесни цвята по избор на клиента, завършени бани с плочки, санитария и смесители Grohe в черно или хром, ключове за осветление, контакти и ел. табло, инсталация за TV и интернет и домофонна система.
Разположен е в малка сграда с 10-на апартамента, съчетаваща иновации и въображение, изпълнена с висок клас строителни материали, елегантни общи части, хидравличен безшумен асансьор, осветление с детектори за движение и озеленено и осветено околоблоково пространство.
Намира се на тиха улица близо до детски учебни заведения, хипермаркет, лесен и удобен достъп до центъра на София, както и бул. Александър Пушкин, бул. Цар Борис III и Околовръстен път.
Към апартамента може да бъде закупено паркомясто или гараж.
Цената без ДДС е 339 870 Е без ДДС
АКТ 16 лятото на 2026 година
Сградата е пред АКТ 15
Традиции и Бъдеще
www.traditionsandfuture.bg
traditionsandfuture@gmail.com
За контакт тел: +359 888 86 76 00
Детайли
-
Цена €407,885
-
Квадратура 120 m²
-
Спални 2
-
Стаи 3
-
Година на завършване 2025
-
Тип имот 3-стаен
-
Вид оферта Продава
-
Обзавеждане Полуобзаведен
-
Вид строителство Тухла
-
Етажи 6
-
Цена кв.м. 3399
-
Отопление Електричество
-
Ново строителство Да
