3-СТАЕН АПАРТАМЕНТ 129 М² ДО МЕТРОСТАНЦИЯ ВИТОША
- €387,000
Адрес
-
Град: София
-
Квартал: Кръстова Вада
Описание
Сграда пред АКТ 15
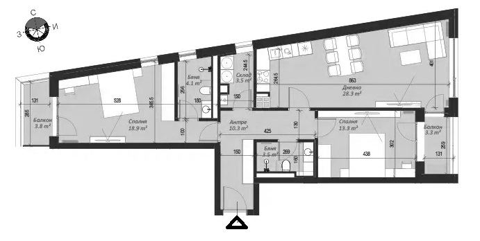
3-СТАЕН апартамент със ЗП 110 м² до метростанция Витоша и МОЛ Парадайс.
Състои се от дневна с трапезария и кухненски кът 28.30 м², спалня 13.30 м², източна тераса към дневната и спалнята 3.3 м², втора спалня 18.90 м² с баня и западна тераса, втора баня, мокро помещение, входно антре и складово помещение в сутерена. Изложението югоизток/северозапад. Отоплението е на ГАЗ.
Предава се на шпакловка и замазка с блиндирани входни врати, висок клас дограма 4 сезона, място за поставяне на външно климатично тяло, ел. инсталация с монтирани ключове, контакти и апартаментно табло, изградено окабеляване за кабелна телевизия, интернет, СОТ и видеодомофон.
Сградата е елегантна и изпълнена с висок клас материали, безшумни електрически асансьори, богато озеленено и осветено околоблоково пространство.
Намира се до метростанция Витоша, МОЛ Парадайс, Южен парк, Зоопарка, множество спирки на градски транспорт и бърз достъп до бул. Черни връх.
Към апартамента може да бъде закупено подземно паркомясто.
Към апартамента може да бъде закупено подземно паркомясто 37 000 Е.
АКТ 16 началото на 2026 година
Сградата е пред АКТ 15
Традиции и Бъдеще
www.traditionsandfuture.bg
traditionsandfuture@gmail.com
За контакт тел: +359 888 86 76 00
Детайли
-
Цена €387,000
-
Квадратура 129 m²
-
Спални 2
-
Стаи 3
-
Година на завършване 2026
-
Тип имот 3-стаен
-
Вид оферта Продава
-
Обзавеждане Необзаведен
-
Вид строителство Тухла
-
Етаж 3
-
Етажи 5
-
Цена кв.м. 3000
-
Отопление Газ
-
Ново строителство Да
