5-СТАЕН АПАРТАМЕНТ – 214 М² В КВ. БАНИШОРА
- €469,945
Адрес
-
Град: София
-
Квартал: Банишора
Описание
БЕЗ КОМИСИОННА ОТ КУПУВАЧА!!!!
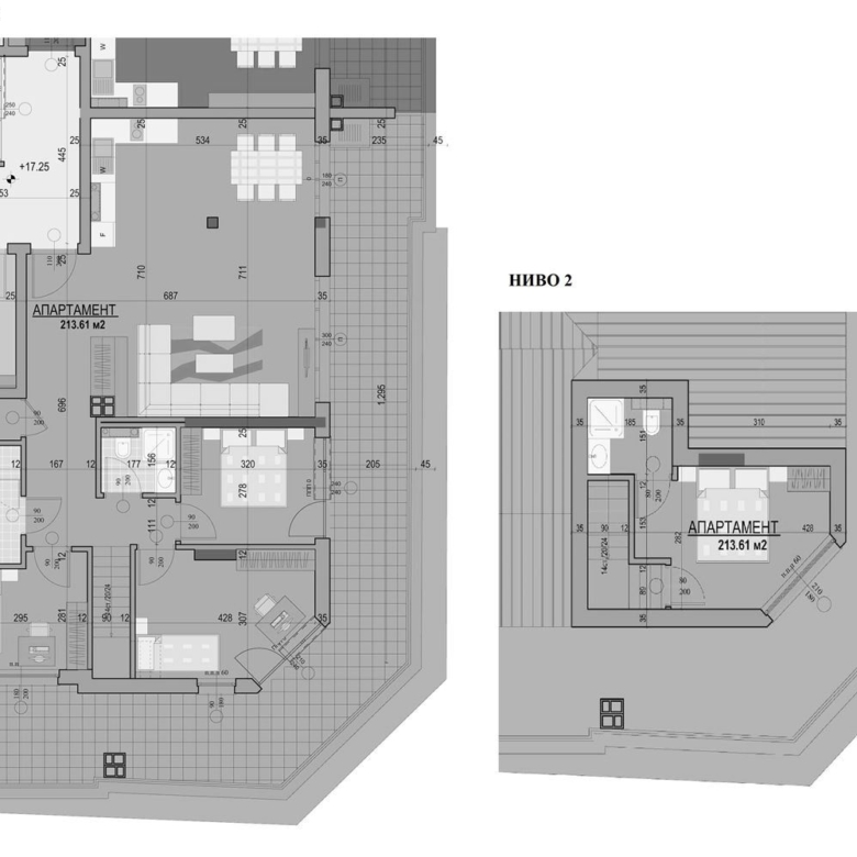
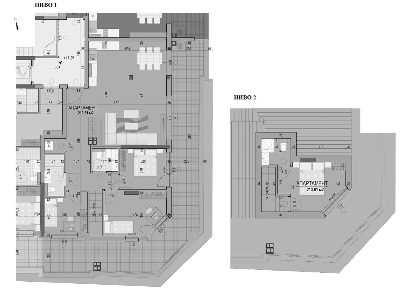
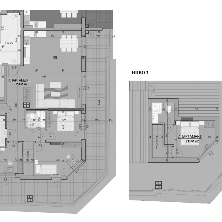
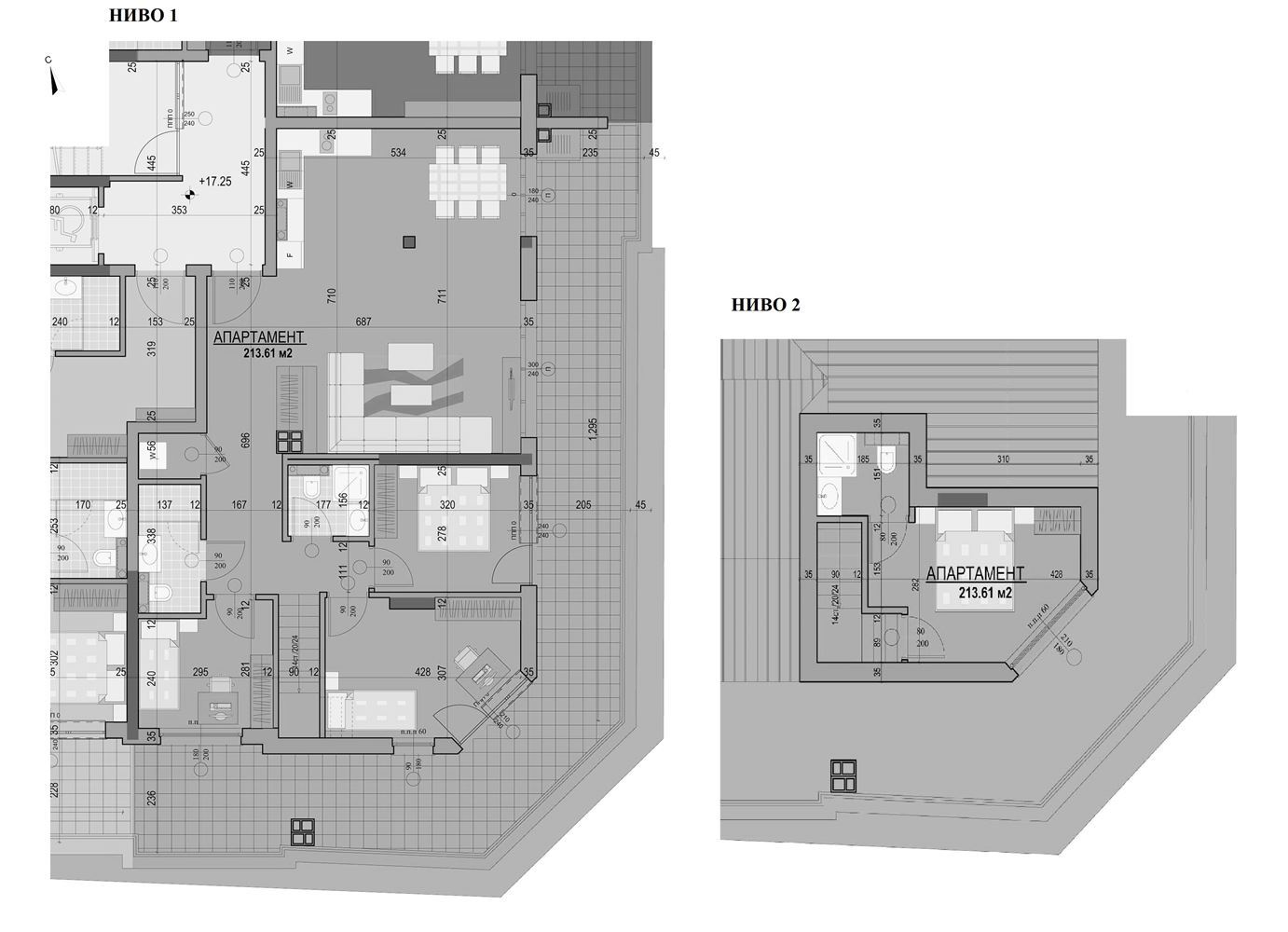
5-стаен апартамент с ЗП 184 м² в кв. Банишора
Апартаментът е мезонет на два етажа. Състои се от:
1 ниво
– просторна дневна с трапезария и кухненски кът;
– три спални;
– панорамна тераса;
– две бани с тоалетна;
– мокро помещение;
– входно антре и стълбище към 2-ри етаж.
2 ниво:
– антре и спалня с баня.
Изложението е юг/изток. Отоплението е на ТЕЦ.
Предава се на шпакловка и замазка с блиндирана входна врата, вътрешни MDF врати, немска PVC дограма с 6 камерен профил троен стъклопакет и нискоемисийно k стъкло, ел. инсталация на ключове и контакти с монтирано апартаментно табло, ВиК на тапи, монтирана домофонна система и инсталация ва TV и интернет.
Сградата е елегантна, с функционално разпределение на апартаментите, вентилируема фасада с керамика, хидравличен 8 местен асансьор ORONA и озеленено и осветено околоблоково пространство.
Намира се близо до центърана София, метростанция Лъвов мост, у-ще, детски градини, супермаркети, спирки на градски транспорт и бърз достъп до бул. Сливница и бул. Христо Ботев.
Към апартамента може да бъде закупено паркомясто или гараж.
АКТ 16 края на 2026 година
Традиции и Бъдеще
Детайли
-
Цена €469,945
-
Квадратура 214 m²
-
Спални 4
-
Стаи 5
-
Година на завършване 2026
-
Тип имот Многостаен
-
Вид оферта Продава
-
Обзавеждане Необзаведен
-
Вид строителство Тухла
-
Етаж 7
-
Етажи 7
-
Цена кв.м. 2196
-
Отопление ТЕЦ
-
Ново строителство Да
